Płyty warstwowe dachowe to innowacyjny materiał budowlany, który zdobywa coraz większą popularność w sektorze budownictwa przemysłowego i komercyjnego. Składają się z dwóch okładzin, zazwyczaj blaszanych, oraz rdzenia izolacyjnego, co zapewnia im doskonałe właściwości termoizolacyjne. W zależności od zastosowanego rdzenia, płyty te mogą oferować różne poziomy izolacji, co czyni je wszechstronnym rozwiązaniem dla różnych typów budynków.
Ich zalety, takie jak szybkość montażu, niska masa oraz odporność na warunki atmosferyczne, sprawiają, że są one idealnym wyborem dla hal przemysłowych, obiektów handlowych czy budynków użyteczności publicznej. Pomimo pewnych wad, takich jak wrażliwość na uszkodzenia mechaniczne, płyty warstwowe dachowe pozostają efektywnym rozwiązaniem, łączącym funkcjonalność z estetyką.
Kluczowe informacje:
- Płyty warstwowe dachowe składają się z dwóch okładzin i rdzenia izolacyjnego, co zapewnia doskonałą izolację termiczną.
- Rodzaje rdzeni obejmują piankę poliuretanową (PUR), piankę poliizocyjanurową (PIR), wełnę mineralną oraz styropian.
- Główne zalety to szybkość montażu, niska masa, odporność na warunki atmosferyczne i estetyka.
- Wykorzystywane są w halach przemysłowych, obiektach handlowych, biurach oraz budynkach użyteczności publicznej.
- Montaż powinien być przeprowadzany zgodnie z zaleceniami producenta, a w przypadku skomplikowanych projektów warto współpracować z profesjonalistami.
- Wady to wrażliwość na uszkodzenia mechaniczne oraz konieczność zabezpieczeń przeciwpożarowych, szczególnie w przypadku rdzeni z pianki.
Definicja i charakterystyka płyt warstwowych dachowych dla budynków
Płyty warstwowe dachowe to nowoczesny materiał budowlany, który zyskuje na znaczeniu w budownictwie przemysłowym i komercyjnym. Składają się z dwóch okładzin, najczęściej wykonanych z blachy, oraz rdzenia izolacyjnego, który odgrywa kluczową rolę w zapewnieniu doskonałych właściwości termoizolacyjnych. Dzięki swojej konstrukcji, płyty te łączą w sobie funkcjonalność i estetykę, co czyni je idealnym rozwiązaniem dla różnych typów budynków.
Ich działanie opiera się na zastosowaniu rdzenia, który skutecznie izoluje termicznie, ograniczając straty ciepła i poprawiając efektywność energetyczną budynków. Płyty warstwowe dachowe są również łatwe w montażu, co przyspiesza cały proces budowy. Warto zaznaczyć, że różnorodność dostępnych rdzeni pozwala na dostosowanie ich do specyficznych potrzeb inwestora, co zwiększa ich atrakcyjność na rynku materiałów budowlanych.
Co to są płyty warstwowe dachowe i jak działają?
Płyty warstwowe dachowe to elementy budowlane, które składają się z dwóch zewnętrznych okładzin oraz wewnętrznego rdzenia. Ich działanie opiera się na stworzeniu efektywnej bariery termicznej, która minimalizuje wymianę ciepła pomiędzy wnętrzem budynku a otoczeniem. Dzięki temu, płyty te przyczyniają się do obniżenia kosztów ogrzewania i chłodzenia, co jest szczególnie ważne w obiektach przemysłowych i komercyjnych.
Jakie są kluczowe elementy konstrukcyjne płyt warstwowych?
Kluczowe elementy konstrukcyjne płyt warstwowych dachowych to okładziny oraz rdzeń izolacyjny. Okładziny, zazwyczaj wykonane z blachy, zapewniają wytrzymałość i odporność na czynniki atmosferyczne, natomiast rdzeń, który może być wykonany z różnych materiałów, odpowiada za właściwości izolacyjne. Właściwy dobór tych elementów jest kluczowy dla osiągnięcia optymalnych parametrów użytkowych i trwałości całej konstrukcji.
Typy rdzeni izolacyjnych i ich właściwości dla efektywnej izolacji
Wybór odpowiedniego rdzenia izolacyjnego jest kluczowy dla efektywności płyt warstwowych dach. Istnieje kilka typów rdzeni, z których każdy ma swoje unikalne właściwości. Najczęściej stosowane materiały to pianka poliuretanowa (PUR), pianka poliizocyjanurowa (PIR), wełna mineralna oraz styropian. Każdy z tych rdzeni charakteryzuje się różnym poziomem izolacji termicznej oraz akustycznej, co wpływa na komfort użytkowania budynków.
Właściwości rdzeni izolacyjnych determinują ich zastosowanie w różnych warunkach. Na przykład, pianka PUR oferuje wysoką izolacyjność termiczną, co czyni ją idealnym rozwiązaniem dla budynków, gdzie efektywność energetyczna jest priorytetem. Z kolei wełna mineralna jest ceniona za swoje właściwości akustyczne i ognioodporność. Zrozumienie tych różnic pozwala na lepsze dopasowanie materiałów do konkretnych potrzeb budowlanych.
Porównanie rdzeni PUR, PIR, wełny mineralnej i styropianu
Porównując rdzenie izolacyjne, można zauważyć istotne różnice w ich właściwościach. Pianka poliuretanowa (PUR) i pianka poliizocyjanurowa (PIR) oferują wysoką izolacyjność termiczną, przy czym PIR jest bardziej odporny na ogień. Wełna mineralna zapewnia dobrą izolację akustyczną i jest ognioodporna, co czyni ją idealnym wyborem do budynków użyteczności publicznej. Styropian, z kolei, jest tańszym rozwiązaniem, ale jego właściwości izolacyjne są niższe niż w przypadku pianki. W poniższej tabeli przedstawiono porównanie tych rdzeni pod względem ich kluczowych właściwości.
| Rodzaj rdzenia | Przewodność cieplna (W/mK) | Waga (kg/m³) | Cena (zł/m²) |
| Pianka PUR | 0.022 | 35 | 30 |
| Pianka PIR | 0.021 | 40 | 35 |
| Wełna mineralna | 0.035 | 100 | 25 |
| Styropian | 0.040 | 15 | 20 |
Jak rdzenie wpływają na izolację termiczną i akustyczną?
Rdzenie izolacyjne w płytach warstwowych dach mają kluczowy wpływ na izolację termiczną i akustyczną budynków. Wysokiej jakości rdzenie, takie jak pianka PUR i PIR, skutecznie ograniczają straty ciepła, co przekłada się na niższe koszty ogrzewania. Z kolei wełna mineralna, dzięki swoim właściwościom akustycznym, znacząco poprawia komfort akustyczny w pomieszczeniach, redukując hałas z zewnątrz. Dobór odpowiedniego rdzenia ma zatem kluczowe znaczenie dla efektywności energetycznej oraz komfortu użytkowania budynków.
Zalety płyt warstwowych dachowych w budownictwie
Płyty warstwowe dachowe cieszą się rosnącą popularnością w budownictwie dzięki swoim licznym zaletom. Jedną z najważniejszych korzyści jest szybkość montażu, która wynika z prefabrykowanej formy tych materiałów. Dzięki temu, proces budowy może być znacznie skrócony, co jest kluczowe w projektach wymagających szybkiej realizacji. Dodatkowo, ich niska masa pozwala na optymalizację konstrukcji dachu, co zmniejsza obciążenie nośne i ułatwia prace budowlane.
Inną istotną zaletą jest doskonała izolacja termiczna, którą zapewniają różne rodzaje rdzeni. Dzięki temu, budynki wyposażone w płyty warstwowe są bardziej energooszczędne, co przekłada się na niższe koszty eksploatacji. Płyty te są również odporne na niekorzystne warunki atmosferyczne, co zapewnia długotrwałą trwałość i bezproblemowe użytkowanie. Wreszcie, dostępność różnych kolorów i faktur okładzin sprawia, że płyty warstwowe mogą być dostosowane do estetyki każdego budynku, co dodatkowo zwiększa ich atrakcyjność na rynku materiałów budowlanych.
Szybkość montażu i oszczędność czasu na budowie
Szybkość montażu to jedna z kluczowych zalet płyt warstwowych dach. Prefabrykowane elementy można łatwo i szybko zainstalować, co znacząco przyspiesza cały proces budowy. Dzięki temu, inwestorzy mogą szybciej oddać budynki do użytku, co jest szczególnie ważne w przypadku projektów komercyjnych. Warto również pamiętać, że odpowiednie planowanie przed montażem oraz dobór właściwych narzędzi mogą jeszcze bardziej zoptymalizować ten proces.
- Przygotuj dokładny plan montażu, aby zminimalizować czas potrzebny na instalację.
- Wybierz odpowiednie narzędzia, takie jak wkrętarki i piły, które ułatwią pracę.
- Upewnij się, że ekipa montażowa jest odpowiednio przeszkolona i ma doświadczenie w pracy z płytami warstwowymi.
Estetyka i różnorodność wykończeń płyt warstwowych
Estetyka to kolejna istotna zaleta płyt warstwowych dach. Dzięki dostępności różnych kolorów i faktur okładzin, płyty te mogą być dostosowane do stylu każdego budynku. To sprawia, że są one idealnym rozwiązaniem zarówno dla nowoczesnych, jak i tradycyjnych obiektów. Wybór odpowiednich wykończeń pozwala na stworzenie harmonijnej i estetycznej całości, co jest ważne dla inwestorów i architektów.
Przykłady zastosowań płyt warstwowych w różnych typach budynków
Płyty warstwowe dachowe znajdują szerokie zastosowanie w różnych typach budynków, co czyni je wszechstronnym rozwiązaniem w budownictwie. Dzięki swoim właściwościom izolacyjnym i łatwości montażu, płyty te są wykorzystywane zarówno w obiektach przemysłowych, jak i komercyjnych. W halach przemysłowych i magazynowych płyty warstwowe pozwalają na efektywne zarządzanie temperaturą, co jest kluczowe dla przechowywania towarów. Obiekty handlowe, takie jak supermarkety czy centra logistyczne, również korzystają z ich właściwości, co pozwala na oszczędności energetyczne.
W budownictwie mieszkalnym płyty warstwowe zyskują na popularności jako elementy konstrukcyjne dachów, które zapewniają efektywną izolację termiczną. Warto również zauważyć, że płyty te są stosowane w budynkach użyteczności publicznej, takich jak hale sportowe czy obiekty edukacyjne, gdzie istotne jest zapewnienie komfortu akustycznego i termicznego. Dzięki różnorodności dostępnych wykończeń, płyty warstwowe mogą być dostosowane do estetyki każdego budynku, co zwiększa ich atrakcyjność w oczach inwestorów.
Płyty warstwowe w budynkach przemysłowych i magazynowych
Płyty warstwowe dachowe są szczególnie cenione w budynkach przemysłowych i magazynowych. Dzięki swojej wysokiej izolacyjności termicznej, pozwalają na utrzymanie optymalnej temperatury wewnętrznej, co jest kluczowe dla przechowywania wrażliwych towarów. W halach produkcyjnych, gdzie często występują różne procesy technologiczne, płyty te pomagają w redukcji kosztów ogrzewania i chłodzenia. Przykłady zastosowań płyt warstwowych w budynkach przemysłowych obejmują magazyny firmy XYZ w Warszawie oraz halę produkcyjną ABC w Poznaniu, które wykorzystują płyty z rdzeniem PIR dla lepszej efektywności energetycznej.
| Nazwa budynku | Lokalizacja | Rodzaj rdzenia |
| Magazyn XYZ | Warszawa | PIR |
| Hala produkcyjna ABC | Poznań | PUR |
| Centrum logistyczne DEF | Kraków | Wełna mineralna |
Wykorzystanie płyt w budownictwie mieszkalnym i komercyjnym
W budownictwie mieszkalnym i komercyjnym, płyty warstwowe dachowe zyskują na popularności ze względu na swoje właściwości izolacyjne oraz estetykę. Stosowane są w nowoczesnych domach jednorodzinnych, gdzie zapewniają efektywność energetyczną i komfort cieplny. W budynkach komercyjnych, takich jak biurowce czy obiekty usługowe, płyty te pozwalają na szybki montaż i elastyczność w projektowaniu. Dzięki różnorodności kolorów i faktur, płyty warstwowe mogą być łatwo dopasowane do stylu architektonicznego, co podnosi wartość estetyczną obiektów.

Proces montażu płyt warstwowych i współpraca z fachowcami
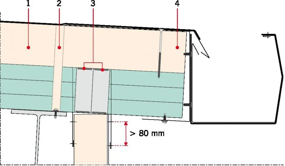
Montaż płyt warstwowych dach to kluczowy etap, który ma wpływ na ich efektywność i trwałość. Proces ten powinien być przeprowadzany zgodnie z zaleceniami producenta, aby zapewnić optymalne parametry użytkowe. Ważne jest, aby przed rozpoczęciem prac sprawdzić geometrię konstrukcji oraz odpowiednio przygotować podpory. W przypadku skomplikowanych projektów, zaleca się współpracę z doświadczonymi fachowcami, którzy znają specyfikę montażu płyt warstwowych.
Współpraca z profesjonalistami jest niezbędna, aby uniknąć potencjalnych problemów podczas instalacji. Specjaliści powinni być dobrze przeszkoleni i posiadać doświadczenie w pracy z materiałami budowlanymi tego typu. Odpowiedni zespół montażowy będzie w stanie szybko i sprawnie zrealizować projekt, co przyczyni się do oszczędności czasu i kosztów. Kluczowe jest także, aby fachowcy stosowali się do wszelkich norm i przepisów budowlanych, co zapewni bezpieczeństwo i jakość wykonania.
Kluczowe etapy montażu płyt warstwowych dachowych
Kluczowe etapy montażu płyt warstwowych dach obejmują kilka istotnych kroków. Na początku należy przygotować miejsce montażu, upewniając się, że konstrukcja jest stabilna i odpowiednio zabezpieczona. Następnie, płyty powinny być układane zgodnie z planem, z zachowaniem odpowiednich odstępów i kierunków. Ważne jest, aby prawidłowo zamocować płyty, stosując odpowiednie akcesoria montażowe, takie jak wkręty i uszczelki. Ostatnim krokiem jest sprawdzenie szczelności oraz wykonanie ewentualnych poprawek, aby zapewnić długotrwałą efektywność izolacyjną.
Jak wybrać odpowiednich specjalistów do montażu?
Wybór odpowiednich specjalistów do montażu płyt warstwowych jest kluczowy dla sukcesu projektu. Należy zwrócić uwagę na doświadczenie firmy oraz jej referencje. Dobrze jest również sprawdzić, czy zespół montażowy ma odpowiednie certyfikaty i szkolenia w zakresie instalacji płyt warstwowych. Warto również porównać oferty różnych wykonawców, aby znaleźć najlepsze rozwiązanie pod względem jakości i ceny. Ostatecznie, dobry wybór fachowców przyczyni się do uzyskania wysokiej jakości wykonania i satysfakcji z efektów końcowych.
Innowacyjne technologie w montażu płyt warstwowych dachowych
W miarę jak technologia budowlana się rozwija, innowacyjne techniki montażu płyt warstwowych dachowych stają się coraz bardziej popularne. Jednym z takich rozwiązań jest wykorzystanie systemów montażowych z automatyzacją, które pozwalają na szybsze i bardziej precyzyjne układanie płyt. Dzięki zastosowaniu robotów i zautomatyzowanych narzędzi, możliwe jest zmniejszenie błędów ludzkich oraz zwiększenie efektywności pracy. Takie podejście nie tylko przyspiesza proces budowy, ale również obniża koszty związane z zatrudnieniem dużej liczby pracowników.
Dodatkowo, warto zwrócić uwagę na zrównoważone materiały budowlane, które mogą być wykorzystane w produkcji płyt warstwowych. Coraz więcej producentów inwestuje w ekologiczne rdzenie, takie jak materiały pochodzące z recyklingu, co przyczynia się do zmniejszenia wpływu budownictwa na środowisko. Integracja takich materiałów z nowoczesnymi technologiami montażu może prowadzić do powstawania bardziej efektywnych energetycznie budynków, które są zgodne z rosnącymi wymaganiami zrównoważonego rozwoju i ochrony środowiska.






